This is not a house. This gem is a home. But she's more than just a home... she's a lifestyle. Nestled in leafy Lamington this old dame embodies "leafy". She is a rare Kalgoorlie beauty that has been renovated thoughtfully.
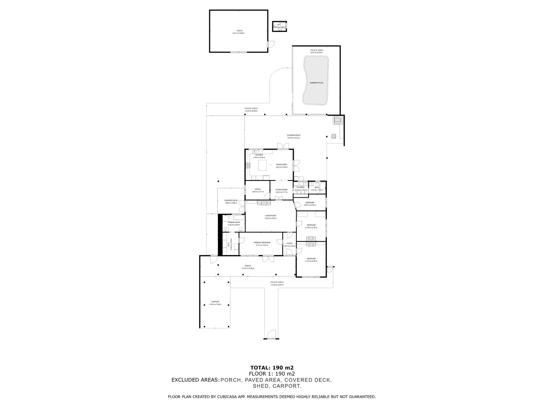
THE OUTDOORS
You can sit on the wide front verandah at the end of a hard day, beer or wine in hand, and watch the glow of the setting sun on the eucalypts and parterre garden.
Or there's the spacious side deck where you can read, take in the scent of orange blossoms, gaze at the leafy canopy around you while listening and watching the bird life flitting about. And if you weren't spoiled for choice already, there's the back patio... an entertaining bonanza.
This spacious area overlooks more green space as well as a glass fenced, fibre glass pool with espaliered citrus trees, a tree house nestled under a tallow tree, a chook pen under a 100 year old weeping mulberry, a fire pit with gabion seat for cozy gatherings, a pizza oven/bbq area and large screen for the big sporting events or an outdoor movie night. This space is all year-round fun. Like I said, "an entertaining bonanza."
THE HOME
If you're not yet sold by the gardens, entertaining and verandahs alone then let me tell you about the house.
There's something about this home that is truly heart-warming.
It's inviting but it's private.
It's cosy but it's big.
Sweeping 12 foot ceilings, some rooms with original pressed tin. A stunning mix of Baltic and jarrah polished floors.
There's just this feel about the place that makes you want to be here.
The first three bedrooms are seriously spacious, two with original fire surrounds. There’s a massive master bedroom which has an ensuite and walk-in-robe that dreams are made of. The smaller bedroom and study are a great size.
The large lounge room has a slow combustion wood fire and leads out to the side deck.
The modern kitchen has been recently renovated with floors and ceilings at the same level and height of the old home. This bustling culinary hub leads out to the 79m2 of patio by two sets of French doors.
Trust me there are more wonderful features that haven't been mentioned. It's glorious. But don't just believe me come and have a look for yourself.
If this is your dream, act now by connecting with Iris Haynes today. Don’t wait as this beautiful home is a once in a lifetime opportunity.
OVERVIEW:
• 4 bedrooms x 2 bathrooms
• Custom designed kitchen
• 1012m2 block with rear lane access
• 9x6m powered shed with vehicle access
• 2 evaporative air conditioners - one for the living areas and one for the bedrooms
• Slow combustion wood fire and one gas log imitation fireplace
• Natural gas connected
• Instantaneous gas hot water system
• 3rd toilet outside with wash basin
• Reticulation throughout
• Established fruit trees (various citrus and pear)
• Deciduous trees to the north to provide shade in the summer and let warmth through in the winter
• Single undercover carport
Features
- Evaporative Cooling
- Swimming Pool - In Ground
- Floorboards













































